○粕屋町住居表示実施基準要領
| (平成17年3月22日要領第1号) |
|
|
第1 趣旨
この要領は、住居表示に関する法律(昭和37年法律第119号。以下「法」という。)に基づき本町が実施する住居表示について、必要な事項を定めるものとする。
第2 住居表示の方法
住居表示の方法は、法第2条第1号に規定する「街区方式」によるものとし、「街区方式による住居表示の実施基準(昭和38年自治省告示第117号)」及びこの要領の定めに従って実施するものとする。
第3 町割り及び町名
1 町界及び町区域
(1) 町の境界
町の境界は、原則として道路、河川、水路、鉄道又は軌道などの恒久的な施設等によって定めるものとする。
この場合、境界線は、河川、水路はその中央線、道路、鉄道及び軌道等は原則として南側又は西側の側線とする。
(2) 町の規模
町の規模は、当該地域の性格、隣接地域の状況、用途地域別、人口、家屋の密度、地形等を勘案し、街区数があまり多すぎたり、少なすぎたりしないよう、町全域均衡を考慮し、適当な規模に定める。
2 町の名称
(1) なるべく従来の町名に準拠し、由緒あるもの、親しみ深いもの、語調のよいもの等から実施地区の住民との協議をふまえて、選択採用するものとし、全町を通じて同一町名は採用せず、類似町名等まぎらわしい町名は避ける。
(2) 原則として単独町名を避け、丁目の方式をとる。
(3) 丁目の数とその配列
丁目の数は、なるべく4、5丁目までを適当とし、限度を8丁目とする。丁目の配列は連続し、かつ、放射式を原則とし、やむを得ないときには蛇行式若しくは環状式によるものとする。
(4) 丁目の起点
丁目の起点は、粕屋町役場に最も近い点を起点とする。ただし、特に必要な場合は、その地域の実情に応じて起点を定めることができる。
第4 街区割り及び街区符号
1 街区の境界
(1) 街区の境界は、原則として道路、河川、水路、鉄道又は軌道などの恒久的な施設等によって定めるものとする。
(2) 街区の境界を私道によって定める場合には、当該私道が公衆用道路として利用されており、容易に変更されないと思われる場合に限るものとする。
(3) (1)及び(2)により街区の境界を定めようとする場合において、その街区の規模が広大(街区の周囲が1km以上で基礎番号3ケタ以上)で単位として適当でないと認められるときは、その街区内の恒久的施設等を利用して境界を定めることができる。
(4) (1)及び(2)により街区の境界を定めようとする場合において、その街区が狭小で、住居表示の単位として適当でなく、かつ、隣接の街区と合わせることが適当と認められる場合は、2以上の街区と合わせて一つの街区とすることができる。
2 街区の規模
街区の規模は、道路網の疎密の度合い及び当該地域における家屋の密度の状況を勘案して、次の各号の定めるところによるものとする。
(1) 面積は、3,000~5,000m2を標準とする。
(2) 街区の周囲が1km以内で住居番号の基礎となる番号が3桁にならないこと。
(3) 戸数は30程度を標準とする。
3 街区符号のつけ方
(1) 街区符号の起点
街区符号の起点は、粕屋町役場に最も近い点を起点とする。ただし、特に必要な場合は、その地域の実情に応じて起点を定めることができる。
(2) 街区符号の呼称
アラビア数字を用い、「番」をつける。
第5 住居番号
住居番号は、住居表示台帳として作成する地図に住居番号の基礎となる番号(以下「基礎番号」という。)を付定し、それを基に建物その他の工作物(以下「建物等」という。)に付けるものとする。
1 基礎番号の付け方
(1) 基礎番号の起点
基礎番号の起点は、粕屋町役場に最も近い点(特に必要な場合は、その地域の実情に応じて定めた地点)を起点とし、原則として右回りに街区の境界線をおおむね10m~15m間隔(以下「フロンテージ」という。)に区切り、フロンテージごとに順次番号を付ける。
(2) フロンテージは、街区の境界線の一辺ごとに精算する一辺精算方式とする。
(3) 街区のフロンテージに5m未満の端数が生じたときは、その部分は原則として直前のフロンテージに加える。
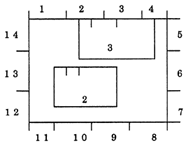
(4) 角切りのある街区のフロンテージの起点は、各角切りの始まりの位置とする。(例図1のとおり)。ただし、街区境界の角が、角度45度未満の場合は直線とみなし、新たなフロンテージの起点としない。〔特に必要な場合は、その実情に応じて定める。〕
| 例図1 |
![]() |
(5) 街区の角が曲線の起点の場合は、原則として曲線の始まりの位置とする。
(6) 街区の一方に、河川、崖等があるために、原則どおり右回りに番号をつけると欠番が多くなる場合は、左回りにすることができる。
2 住居番号の付け方
(1) 住居番号は、原則として次の各号に該当する基礎番号をもって、当該建物等の住居番号とする。
ア 建物等の主要な出入口が、街区の境界となる道路に接している場合は、当該出入口が街区の境界線と接するところに付けられている基礎番号(例図2のとおり)〔特に必要な場合は、その実情に応じて定める。〕
| 例図2 |
![]() |
イ 建物等の主要な出入口が、街区の境界となる道路から離れている場合は、その建物等から道路への主要な道路が街区の境界線と接しているところに付けられている基礎番号(例図3のとおり)〔特に必要な場合は、その実情に応じて定める。〕
| 例図3 |
![]() |
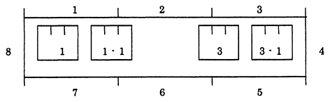
ウ 建物等の主要な出入口又は通路の中心が2つの基礎番号の境目にあたる場合は、若い数字の基礎番号。(例図4のとおり)
ただし、これにより、2つの建物等の住居番号が同番号となる場合は、老いた数字の基礎番号とする。(例図5のとおり)〔特に必要な場合は、その実情に応じて定める。〕
| 例図4 | 例図5 |
![]() |
![]() |
エ 建物等に主要な出入口の通路が2つ以上ある場合は原則として若い数字の基礎番号。(例図6のとおり)〔特に必要な場合は、その実情に応じて定める。〕
| 例図6 |
![]() |
(2) 住居番号の呼称
住居番号は、アラビア数字を用い、「号」を付ける。
第6 住居表示の仕方
住居表示の仕方は、次の例による。
| 従来の表示方法 |
![]() |
| 新しい表示方法(住居表示) |
![]() |
第7 住居表示の特例
1 団地の場合
地方公共団体、独立行政法人都市再生機構、会社等が1以上の町を構成できる規模(概ね500戸程度)をもった一団の土地に集団的に住宅を建設し、又は建設しようとする地域(以下「団地」という。)における町名、街区割り、住居番号の付け方及び住居表示の仕方については、次に定めるところによることができる。
(1) 町名
団地のみの地域の町名は「○○団地」又は「○○団地○丁目」という呼称を用いることができる。
(2) 街区割
ア 集合住宅は1棟1街区を原則とする。
イ 一般交通の用に供する幅員おおむね4m以上の道路によって画された区域をもって一街区とする。
ウ 上記イの街区中に団地設計によらない他の建物等が入り込んで存在する場合には、原則としてその建物等を含めて、道路等で街区を定めるものとする。
(3) 住居番号のつけ方
ア (2)のアの街区割りをする場合を除き、棟番号と各戸の番号とを合わせて住居番号とする。
イ 棟番号は、第4の3の街区符号の付け方に準じた要領で付けるものとする。
ウ 既設の団地において、棟番号がすでに一定の方式によって整然と順序よく付けられている場合は、既存の棟番号を用いてもよい。
エ 各戸の番号は一定の基準により順序よく付けるものとする。
オ 共同住宅以外の建物等(例えば、管理事務所、集会所、分譲住宅及び一戸建住宅等)及び団地設計によらない他の建物等については、住居番号の付け方は、第5の一般原則に準じるものとする。この場合に、棟番号と住居番号が重複しないように整然と順序よく付ける。
2 集合住宅の場合
集合住宅等で、その建物に構造上区分された数個の部分で独立して住居、店舗、事務所等の用途に供することができるもので、当該独立した部分ごとに住居番号を付ける必要があるものについての、住居番号の付け方及び住居表示の仕方は、次に定めるところによることができる。
(1) 住居番号の付け方
ア 建物の道路への主要な出入口(主要な出入口が二つ以上ある場合には、第5の2の(1)のエによる。)の基礎番号と各戸の番号を合わせて住居表示とする。この場合の各戸の番号は、3桁以上とする。ただし、3桁以下でも1階に独立した出入口がある建物についてはこの限りではない。
イ 一街区の中にある集合住宅について一定の基準により基礎番号によらない番号又は棟番号(以下「棟番号等」という。)が付けられている場合には、1の団地の住居番号の付け方に準じ、棟番号等と各号の番号を持って住居番号とすることができる。
(2) 住居表示の仕方
住居表示の仕方は次の例による。
![]() |
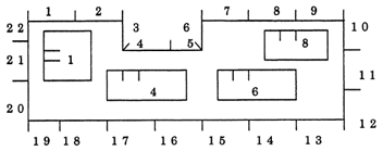
3 整然と並んだ住宅の場合
一街区全部に整然と公営住宅、社宅等がある場合は、基礎番号によらずに順序よく建物に番号を付け、住居番号とすることができる。(例図7のとおり)〔特に必要な場合は、その実情に応じて定める。〕
| 例図7 |
![]() |
4 整然とした土地の区画の場合
土地の区画が統一的に整然となっている場合においては、区画に応じたフロンテージを付して基礎番号を付けることができる。(例図8のとおり)〔特に必要な場合は、その実情に応じて定める。〕
| 例図8 |
![]() |
5 袋小路の場合
袋小路の場合は、同一番号の不便を解消するため袋小路も街区の外周とみなし、袋小路にフロンテージを付して基礎番号を付けることができる。(例図9のとおり)〔特に必要な場合は、その実情に応じて定める。〕
| 例図9 |
![]() |
6 枝番号の付定
基礎番号により住居番号を付定する場合に、同番号が生じる場合は手前の建物の住居番号に基礎番号の数字を付定し、次の建物からは順次枝番号を付定することができる。(例図10のとおり)〔特に必要な場合は、その実情に応じて定める。〕
| 例図10 |
![]() |
第8 住居表示台帳の作成
法第9条の規定による住居表示台帳は、次に定めるところにより原則として付近の状況が解るよう数街区ごとに作成する。
この場合、町(丁目)の位置図及び街区の位置図を同一の冠称単位に作成する。
| 1 様式 |
| 住居表示台帳は、原則として500分の1の縮尺とし、「別紙1」の様式とする。 |
| 2 記載事項 |
| 新町名、街区符号、基礎番号、住居表示を必要とする建物及び主要な出入口並びに道路までの通路及び門の位置を記載し、隣接の街区の境界線及び街区符号等を記入する。 |
| 町(丁目)の位置図及び街区の位置図には、町(丁目)、街区の配置、街区符号等を記入する。 |
第9 表示板の設置
町名及び街区符号を記載した表示板(以下「街区表示板」という。)街区符号と住居番号を記載した表示板(以下「住居番号表示板」という。)及び町名を記載した表示板(以下「町名板」という。)は、次に定めるところにより設置する。
1 街区表示板の設置場所及び様式
(1) 街区表示板は、各街区の角ごと又はその付近及びその他特に表示の必要を認める場所に所在する建物等を利用して設置するものとする。
(2) 街区表示板の取付けは、街区表示板の下端が地上から概ね1m60cmとなるようにする。
(3) 街区表示板は、「別紙2」の様式とする。
2 住居番号表示板の設置場所及び様式
(1) 住居番号表示板は、門柱又は建物等の玄関に取り付けることとし、地上から概ね1m60cmの高さとする。
(2) 住居番号表示板の様式は、「別紙3」の様式とする。
3 町名表示板の設置場所及び様式
(1) 町名表示板は、原則として住居番号表示板の上又は左に設置すること。
(2) 町名表示板の様式は、別紙4の様式とする。
第10 その他
1 住居表示案内図
住居表示案内図は、縮尺2,500分の1又は3,000分の1の図面に、建物と旧町界町名、新町界町名、街区符号及び街区の角ごとに若い数字の基礎番号を記載することを原則とする。
2 新旧対照表
新旧対照表は、公簿更正、証明等のために「氏名有り」のものと閲覧用の「氏名無し」のものの2通りとする。
3 通知書
通知書は、電算印字記入のもの(「別紙5」の様式)とする。
附 則
この要領は、公布の日から施行する。













